Vchodové hliníkové dvere


HLINÍKOVÉ VCHODOVÉ DVERE MB-104 Passive

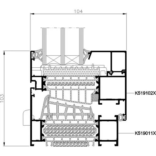
TECHNICKÝ VÝKRES

MB-104 Passive je najnovšou radou spoločnosti ALUPROF, ktorá odráža najmodernejšie trendy v oblasti hliníkových konštrukcií. Jedná sa o systém s najväčšou tepelnou izoláciou, určený pre pasívnu a nízkoenergetickú výstavbu. K dispozícií je verzia SI (vložky z EPS), alebo AERO (účinný izolátor z aerogelu).

  • Hĺbka rámu: 95 mm
  • Hĺbka krídla: 95 mm
  • Hrúbka ozdobného panelu: 65 - 95 mm
  • Maximálne rozmery krídla
    šířka do 1400 mm,
    výška do 2600 mm
  • Priepustnosť vzduchu: Trieda 3, EN 12207:2001
  • Vodotesnosť: Trieda 7A (300 Pa), EN 12208:2001
  • Odolnosť voči zaťaženiu vetrom: Trieda C4/B5, EN 12210:2001
  • Súčiniteľ prestupu tepla: UD od 0,44 W/m2K
  • 1. Ozdobný panel v širokej škále vzorov a farieb
  • 2. Dilatačné elementy eliminujúce prehyb krídla
  • 3. Štyri úrovne izolácie (SI, SI+ a AERO) splní všetky nároky na tepelný komfort
  • 4. Centrálne tesnenie po celom obvode krídla zaručuje vysokú tesnosť a izoláciu
  • 5. Výplň z PUR s vysokou tepelnou izoláciou
  • 6. Zalícovaný izolovaný prah

HLINÍKOVÉ VCHODOVÉ DVERE MB-86

TECHNICKÝ VÝKRES

MB-86 má oproti systému MB-104 Passive menšú stavebnú hľbku. Napriek tomu ide o jeden z najlepšých systémov vo svojej kategórii. V ponuke je tepelná verzia SI (vzduchová komora navyše) alebo AERO (účinný izolant z aerogelu). Vhodný pre nízkoenergetické domy.

  • Hĺbka rámu: 77 mm
  • Hĺbka krídla: 77 mm
  • Hrúbka ozdobného panelu: 44 - 77 mm
  • Maximálne rozmery krídla
    šírka až 1200 mm,
    výška až 2400 mm
  • Priepustnosť vzduchu: Trieda 3, EN 12207:2001
  • Vodotesnosť: Trieda 6A (250 Pa), EN 12208:2001
  • Odolnosť voči zaťaženiu vetrom: Trieda C5/B5, EN 12210:2001
  • Súčiniteľ prestupu tepla: UD od 0,63 W/m2K
  • 1. Ozdobný panel v širokej škále vzorov a farieb
  • 2. Dilatačné elementy eliminujúce prehyb krídla
  • 3. Štyri úrovne izolácie (SI, SI+ a AERO) splní všetky nároky na tepelný komfort
  • 4. Výplň z PUR s vysokou tepelnou izoláciou
  • 5. Tuhé hliníkové profily zaručujú pevnosť aj nadrozmerných dverí
  • 6. Zalícovaný izolovaný prah

 

Vzorky nepriehľadných skiel

 

Okrasné dverné výplne si môžete pozrieť tu: